|
|
M & B Estimating Services |
![]() |
| Home | Who We Are | What We Do | Jobs Bidding | Contact Us |
Plan Takeoff
M & B Estimating Services performs plan takeoff, lumber takeoff and earthwork takeoff.
Our services include plan take-off, detailed lumber take-off and earthwork take-off. The plan take-off can be time consuming and cumbersome. Our take-off services can include any item or component on the plan, such as lumber or trim materials - or we can do a complete plan takeoff of all items.
|
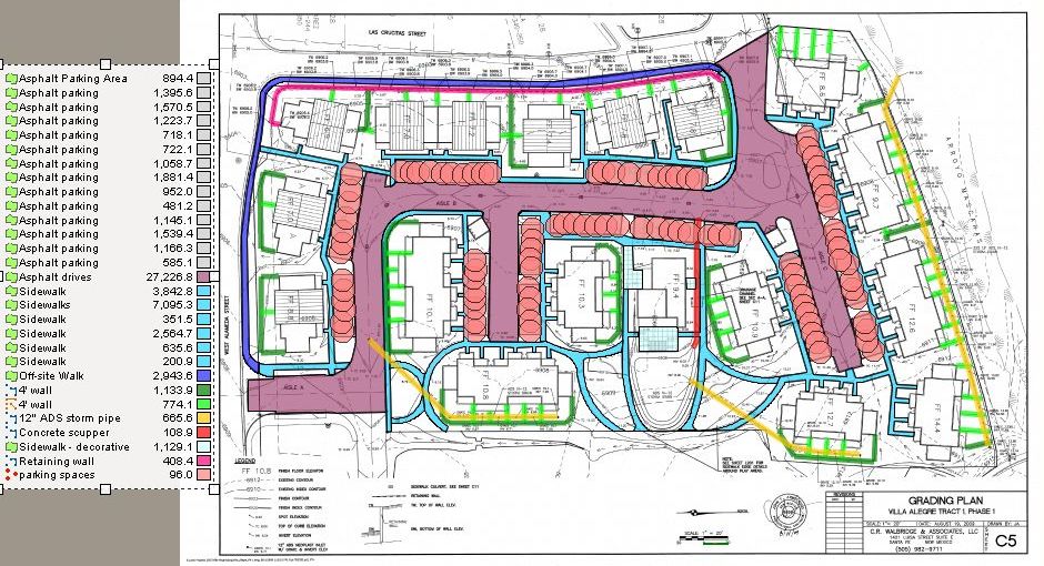
Detailed Plan Take-off - We can provide a detailed take-off of items on the plans using our e-digitizer. This digitizer allows items to be taken-off and color coded so they are easily noted on the plan. And it saves paper. Just email the plans to us. If the plan file is too large to email, let us know and we can suggest ways to transfer and download the plans. When we are done with the take-off, we will prepare a summary of the quantities in Excel format and email those to you. We can also send you "screen shots" of the plan take-off. These are some examples of the take-off "screen shots". Digitized Site Plan - Parking Counts and Areas, Drive Areas, Sidewalk Areas, Storm Drain Piping, Walls and Fences
Digitized Floor Plan - Room Areas and Window Counts
|
| Home | Who We Are | What We Do | Jobs Bidding | Contact Us |
|
M & B Estimating Services, Inc., info@m-bestimating.com |
Web Hosting by InMotion Hosting |